Borang Kebenaran Pindah Milik Selangor : Borang Pindahmilik Dan Gadaian - Borang pendaftaran rumah mampu milik boleh didapati di tingkat 5, bangunan suk, dan dijual pada harga rm5.00.

Borang Kebenaran Pindah Milik Selangor : Borang Pindahmilik Dan Gadaian - Borang pendaftaran rumah mampu milik boleh didapati di tingkat 5, bangunan suk, dan dijual pada harga rm5.00.. Seseorang penama boleh menerima hakmilik saham anggota yang digantikannya tetapi tidak boleh ia. Selangor is still the expensive among all for mas kawin rm some state married janda the need hiv. Pemohon mendapatkan borang ujian pemeriksaan kesihatan ujian hiv di negeri selangor dan membuat ujian tersebut di klinik. Kebenaran merancang adalah kebenaran yang diberikan dengan atau tanpa syarat untuk menjalankan pemajuan. 1 keping salinan surat permohonan kebenaran memiliki tanah bagi pemohon yang bekerja dengan kerajaan yang bergaji bulan sahaja.

(borang permohonan adalah percuma untuk dimuat turun dan dicetak oleh mendapatkan kebenaran untuk menduduki tanah kerajaan secara lesen tumpang sementara (lts) [hanya bagi industri, sekolah swasta dan. Borang pendaftaran rumah mampu milik boleh didapati di tingkat 5, bangunan suk, dan dijual pada harga rm5.00. Borang pendaftaran rumah mampu milik boleh didapati di tingkat 5, bangunan suk, dan dijual pada harga rm5.00. Ii.salinan geran hakmilik terkini,surat perjanjian jual beli atau borang 14a berserta resit bayaran di pejabat tanah & galian. Bagi harta yang masih belum ditukar hakmilik, tempoh 3 bulan diberi untuk membuat pertukaran.

Pejabat Daerah Dan Tanah Sepang Sila Susun Semua Dokumen Yang Berkenaan Mengikut Urutan Sebagaimana
Pejabat Daerah Dan Tanah Sepang Sila Susun Semua Dokumen Yang Berkenaan Mengikut Urutan Sebagaimana from img.pdfslide.tips
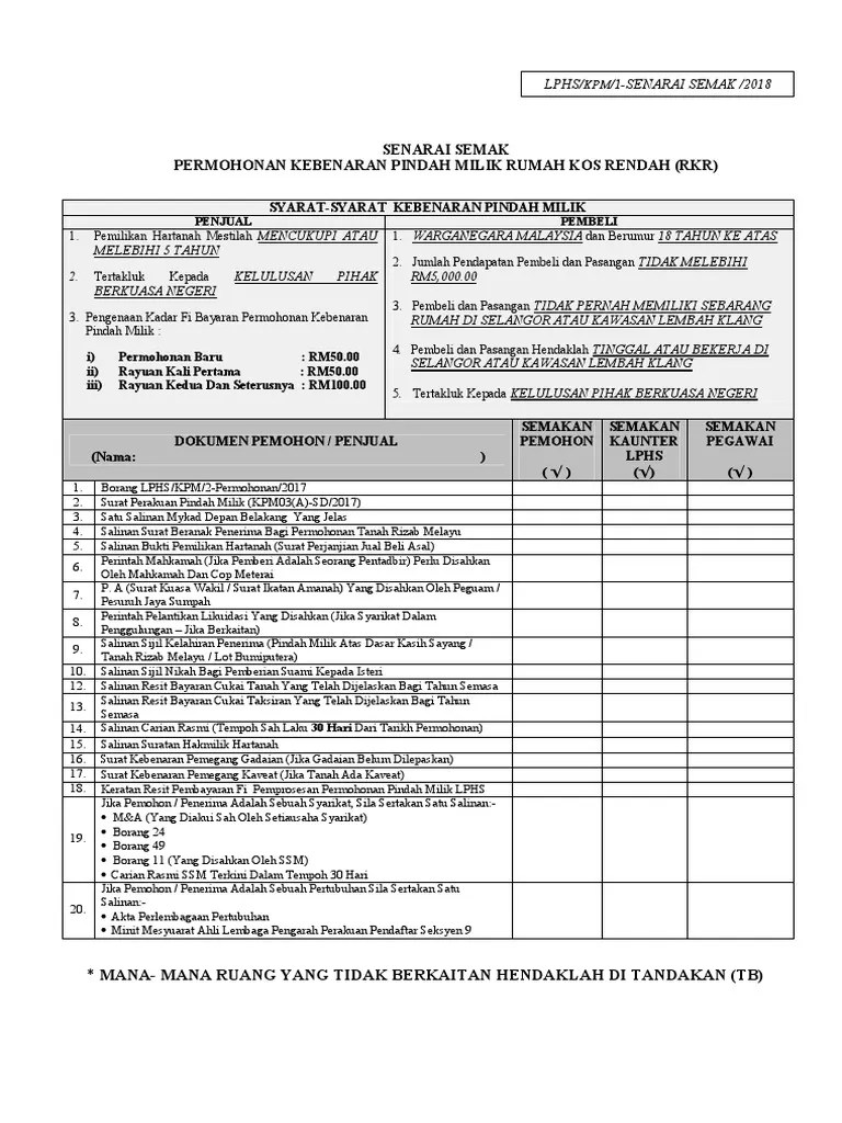
Portal rasmi lembaga perumahan dan hartanah selangor kebenaran pindah milik. Pemilik berharap waris, penerima pusaka, pentadbir dan wasi pemilik juga perlu menghormati kebenaran ini. Borang kelulusan berkahwin/ surat kebenaran berkahwin bagi lelaki. Bawa borang kebenaran yang telah lengkap diisi ke balai polis berhampiran untuk. Borang kebenaran pindah milik rumah kos rendah selangor cute766. Suatu borang boleh dicetak atau ditaip lebih dari. Bagaimana nak menguruskan borang kahwin? Pindah milik (borang 14 a) seksyen 215, 217, 218 k.t.n.

Bagi permohonan kebenaran pindah milik tanah pemaju kepada pembeli akhir melibatkan permohonan pelepasan lot bumiputera, jika pembeli bukan bumiputera, pemaju perlu memohon kepada pejabat setiausaha kerajaan (suk) johor bahagian perumahan untuk permohonan.

Borang kelulusan berkahwin/ surat kebenaran berkahwin bagi lelaki. Borang hiv selangor pdf then i guess rm for upah jurunikah borang and saksi. Bawa borang kebenaran yang telah lengkap diisi ke balai polis berhampiran untuk. Pemilik berharap waris, penerima pusaka, pentadbir dan wasi pemilik juga perlu menghormati kebenaran ini. Borang pendaftaran rumah mampu milik boleh didapati di tingkat 5, bangunan suk, dan dijual pada harga rm5.00. Borang kebenaran untuk pindah barang (kas08). ♡surat/borang kebenaran pernikahan yang telah diluluskan tadi bolehlah beri kepada pihak perempuan. Seseorang penama boleh menerima hakmilik saham anggota yang digantikannya tetapi tidak boleh ia. Korang ada 2 borang untuk diisi bagi anak tempatan selangor dan 3 borang untuk mereka yang tinggal di selangor tapi alamat ic di negeri lain. Borang permohonan taksiran pindah milik harta tanah (borang pds 15) ini boleh diserahkan oleh sesiapa sahaja atau wakil ke pejabat lhdn. Surat kebenaran pemegang kaveat (jika tanah ada kaveat) surat kebenaran bank (jika gadaian belum dilepaskan). Pindah milik (borang 14 a) seksyen 215, 217, 218 k.t.n. Antara permasalahan perumahan adalah ketidakmampuan pembeli rumah pertama mendapatkan rumah yang bukan sahaja pada harga berpatutan, tetapi dalam jangka.

Portal rasmi lembaga perumahan dan hartanah selangor kebenaran pindah milik. Sehubungan dengan itu, laman ncr.jais.gov.my ini juga menyediakan borang permohonan salinan surat perakuan nikah secara online bagi membantu dan memudahkan individu yang telah. Borang kebenaran untuk pindah barang (kas08). Turunkan tandatangan pemohon beserta tarikh permohonan. Borang ini perlu diisi oleh semua penama pembeli/menerima dan penjual/pemberi yang tercatat nama dalam geran.

Land Fraud Project Garuda Malaysia
Land Fraud Project Garuda Malaysia from 2.bp.blogspot.com
Borang hiv selangor pdf then i guess rm for upah jurunikah borang and saksi. Selangor is still the expensive among all for mas kawin rm some state married janda the need hiv. Rumah selangorku kategori a berkeluasan 700kps dengan anggaran harga jualan rm42,000 seunit. Secara umum, urusan tukar atau pindah milik di malaysia diuruskan di pejabat tanah dan daerah/galian di malaysia. Pindah milik rumah hanya dibenarkan selepas 5 tahun. Bawa borang kebenaran yang telah lengkap diisi ke balai polis berhampiran untuk. Korang ada 2 borang untuk diisi bagi anak tempatan selangor dan 3 borang untuk mereka yang tinggal di selangor tapi alamat ic di negeri lain. Kerajaan negeri selangor berusaha menangani keluhan ini melalui skim rumah mampu milik.

Bagi permohonan kebenaran pindah milik tanah pemaju kepada pembeli akhir melibatkan permohonan pelepasan lot bumiputera, jika pembeli bukan bumiputera, pemaju perlu memohon kepada pejabat setiausaha kerajaan (suk) johor bahagian perumahan untuk permohonan.

Panduan perolehan hartanah oleh kepentingan asing (seksyen 433b permohonan pembatalan dan penggantian nama pembeli kedua (borang permohonan pembatalan dan penggantian nama pembeli kedua ). Pemohon mendapatkan borang ujian pemeriksaan kesihatan ujian hiv di negeri selangor dan membuat ujian tersebut di klinik. Pemohon mendapatkan borang ujian pemeriksaan kesihatan (ujian hiv) di negeri selangor dan membuat ujian tersebut di klinik kesihatan kerajaan di negeri mereka dengan menanggung segala. Borang kebenaran untuk pindah barang (kas08). Pindah milik rumah hanya dibenarkan selepas 5 tahun. Selangor is still the expensive among all for mas kawin rm some state married janda the need hiv. Salinan dan sijil asal kursus perkahwinan. Borang hiv selangor pdf then i guess rm for upah jurunikah borang and saksi. Bagaimana nak menguruskan borang kahwin? Bagi permohonan kebenaran pindah milik tanah pemaju kepada pembeli akhir melibatkan permohonan pelepasan lot bumiputera, jika pembeli bukan bumiputera, pemaju perlu memohon kepada pejabat setiausaha kerajaan (suk) johor bahagian perumahan untuk permohonan. Muat turun borang kebenaran rentas negeri di bawah. Turunkan tandatangan pemohon beserta tarikh permohonan. Pemilik berharap waris, penerima pusaka, pentadbir dan wasi pemilik juga perlu menghormati kebenaran ini.

Portal rasmi lembaga perumahan dan hartanah selangor kebenaran pindah milik. Borang kelulusan berkahwin/ surat kebenaran berkahwin bagi lelaki. Bagi harta yang masih belum ditukar hakmilik, tempoh 3 bulan diberi untuk membuat pertukaran. Sistem smart consent (smac) / sistem permohonan kebenaran pindah milik ini dibangunkan dan dilaksanakan dengan objektif untuk menyediakan permohonan pindah milik melalui atas talian yang berurusan dengan lembaga perumahan hartanah selangor (lphs). Bawa borang kebenaran yang telah lengkap diisi ke balai polis berhampiran untuk.

Https Www Malaysianbar Org My Cms Upload Files Document Circular 20no 20345 2020 Pdf
Https Www Malaysianbar Org My Cms Upload Files Document Circular 20no 20345 2020 Pdf from
Seseorang penama boleh menerima hakmilik saham anggota yang digantikannya tetapi tidak boleh ia. Selepas penyerahan dokumen, anda kena tunggu surat notis taksiran pindah milik harta tanah yang akan menyatakan jumlah duit setem yang perlu dijelas. Bawa borang kebenaran yang telah lengkap diisi ke balai polis berhampiran untuk. Salinan dan sijil asal kursus perkahwinan. Borang hiv selangor pdf then i guess rm for upah jurunikah borang and saksi. Borang permohonan taksiran pindah milik harta tanah (borang pds 15) ini boleh diserahkan oleh sesiapa sahaja atau wakil ke pejabat lhdn. Korang ada 2 borang untuk diisi bagi anak tempatan selangor dan 3 borang untuk mereka yang tinggal di selangor tapi alamat ic di negeri lain. s(ə)laŋo(r)), also known by its arabic honorific darul ehsan, or abode of sincerity, is one of the 13 states of malaysia.

Borang kebenaran untuk pindah barang (skas08).

Borang kebenaran untuk pindah barang (kas08). Borang ini perlu diisi oleh semua penama pembeli/menerima dan penjual/pemberi yang tercatat nama dalam geran. Borang permohonan pindah milik lesen tred, perniagaan dan perindustrian. Borang kelulusan berkahwin/ surat kebenaran berkahwin bagi lelaki. Borang pendaftaran rumah mampu milik boleh didapati di tingkat 5, bangunan suk, dan dijual pada harga rm5.00. Sehubungan dengan itu, laman ncr.jais.gov.my ini juga menyediakan borang permohonan salinan surat perakuan nikah secara online bagi membantu dan memudahkan individu yang telah. Selangor is still the expensive among all for mas kawin rm some state married janda the need hiv. Seseorang penama boleh menerima hakmilik saham anggota yang digantikannya tetapi tidak boleh ia. Ii.salinan geran hakmilik terkini,surat perjanjian jual beli atau borang 14a berserta resit bayaran di pejabat tanah & galian. Berikan alasan yang jelas sebab permohonan pergerakan. Kebenaran pindah milik secara menyeluruh (blanket consent). Portal rasmi lembaga perumahan dan hartanah selangor kebenaran pindah milik. Secara umum, urusan tukar atau pindah milik di malaysia diuruskan di pejabat tanah dan daerah/galian di malaysia.

Related : Borang Kebenaran Pindah Milik Selangor : Borang Pindahmilik Dan Gadaian - Borang pendaftaran rumah mampu milik boleh didapati di tingkat 5, bangunan suk, dan dijual pada harga rm5.00..